Framkvæmdir hafnar við nýjar íbúðir á Dalvík
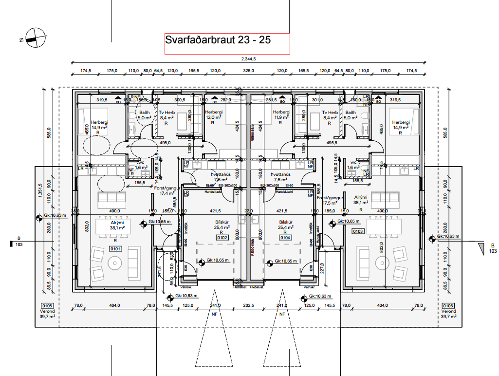
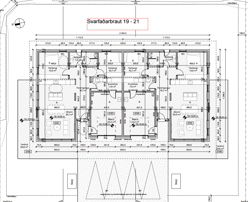
Tvö ný parhús í byggingu við Svarfaðarbraut á Dalvík
Tréverk hefur hafið framkvæmdir við tvö ný glæsileg parhús við Svarfaðarbraut á Dalvík, þar sem rísa munu samtals fjórar íbúðir.
Húsin munu standa við Svarfaðarbraut 19–21 og 23–25 og eru einnar hæðar byggingar með bílskúr og verönd. Íbúðirnar við Svarfaðarbraut 19–21 eru um 140 m² að stærð, en íbúðirnar við 23–25 eru 152 m². Allar íbúðirnar eru rúmgóðar og bjartar, með tveimur svefnherbergjum, alrými, baðherbergi og þvottahúsi með tengingu við bílskúr.
Húsin eru hönnuð af Kollgátu arkitektum og eru uppsteypt með álklæðningu í ljósum lit og viðarklæðningu sem setur hlýjan svip á húsin. Aðkoma og bílastæði verða upphituð með snjóbræðslukerfi, og gert er ráð fyrir hleðslustöðvum fyrir rafbíla við bílskúra.
Framkvæmdir ganga vel og stefnt er að því að íbúðirnar verði til afhendingar í lok næsta árs.
Áhugasamir eru hvattir til að hafa samband fyrir nánari upplýsingar.


Tréverk ehf. hefur undirritað samning við Dalvíkurbyggð um byggingu nýs vatnstanks við Upsa á Dalvík. Um er að ræða umfangsmikla framkvæmd sem felur í sér jarðvinnu, lagningu lagna og uppsteypu á nýjum vatnstanki. Tankurinn verður um 900 m³ og mun styrkja vatnsöflun og rekstraröryggi vatnsveitu sveitarfélagsins. Framkvæmdir hefjast á næstunni og er stefnt að því að taka tankinn í notkun haustið 2026. Lokafrágangur verksins mun síðan fara fram á árinu 2027. Á myndinni eru Björn Friðþjófsson, framkvæmdastjóri Tréverks ehf., og Eyrún Ingibjörg sveitarstjóri Dalvíkurbyggðar við undirritun samnings um byggingu nýs vatnstanks við Upsa á Dalvík.

